FOREST GRID INTERIOR

Private house

Project description

The FOREST GRID project, which is already in the active implementation phase, is a CLT panel house where our goal was to create architecture organically connected to nature—a private recreation complex on the border of a forest and a lake.

In the interior, the client wanted to achieve an almost magical sense of space: to retain the vibe of a country house with warm wood finishes, but subtly shift it toward a contemporary feel.

The choice of materials is deliberate. Green porcelain stoneware and veneer continue the visual rhythm of the evergreen forest outside the window, while the beige hue of the CLT panels echoes the color of the branches and trunks, as if bringing the landscape inside the house. Thus, the project forms a holistic environment where the architecture is not opposed to nature, but becomes its logical continuation.

  • FOREST GRID INTERIOR

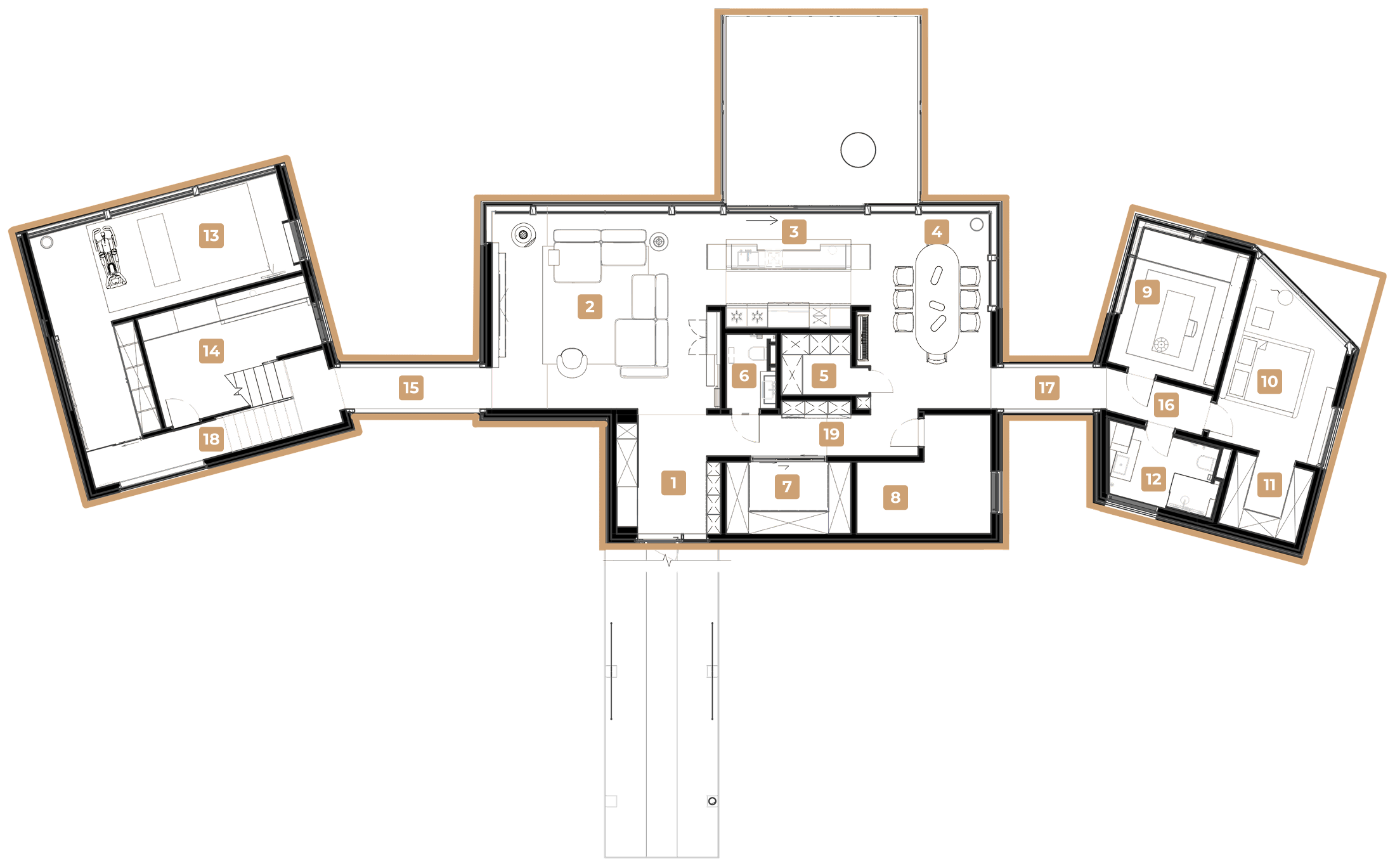
1st floor plan

1st floor plan
Explication of the plan

2nd floor plan

2nd floor plan
Explication of the plan


Did you like the project?

Share the link:

Our projects

Look at the works and completed projects of our studio specialists:

contact us

And we will answer any questions you have