VIREO HOUSE

Architectural project

Project description

A play of contrasts underlies this house: solid, almost monumental stone meets the crystalline lightness of glass, and their dialogue creates a balance between functionality and expressive style.

The architecture is built around an L-shaped volume with carefully considered zoning.

On the ground floor, guests are greeted by a square open space, where a spiral staircase with a double-height space above the fireplace enhances the vertical dynamic. The master suite also features a study, a spacious dressing room, and a shower opening onto the terrace. This level is complemented by a spa area with a swimming pool with a sliding window onto the terrace and a gym — a private world of relaxation within the home.

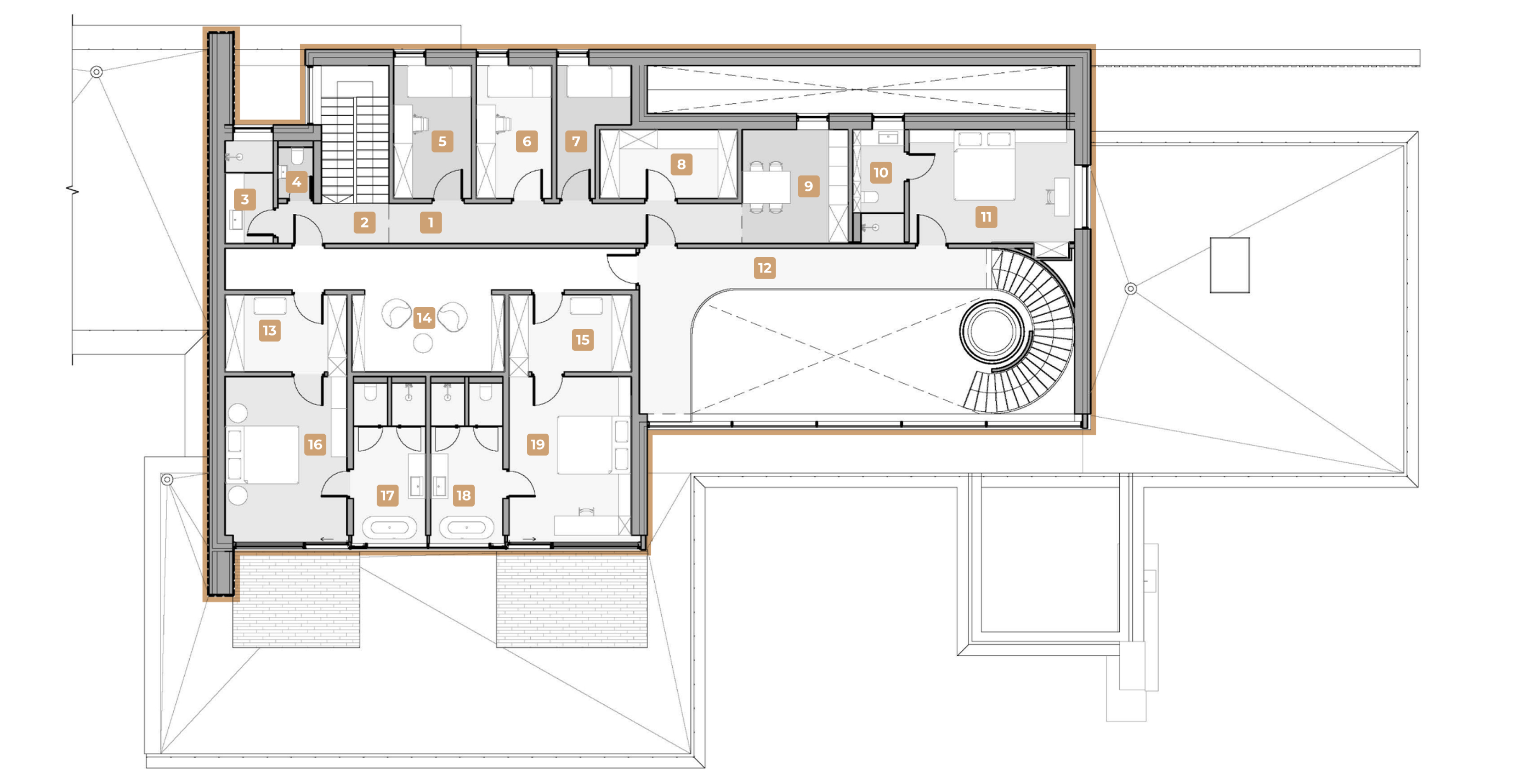
For comfortable living, the second floor features children's rooms, a staff suite with a separate rough staircase, and a guest bedroom — all independent but united by a common layout.

The facades combine sandstone and metal — a combination that enhances the plasticity of the lines and gives the house an expressive character.

1st floor plan

1st floor plan
Explication of the plan

2nd floor plan

2nd floor plan
Explication of the plan


Did you like the project?

Share the link:

Our projects

Look at the works and completed projects of our studio specialists:

contact us

And we will answer any questions you have