CONTINENTAL RESIDENCE

Architectural project

Project description

Rhythm, tectonics, materiality, and scale. When designing this 2,000-square-meter space, our goal was not to emphasize volume, but to dissolve it into a sequence of spaces and states.

Instead of a single mass, the house is assembled from offset fragments, forming a legible hierarchy of volumes. This structure establishes an internal rhythm and allows the architecture to be perceived in stages, without directly confronting its actual scale. The space unfolds gradually through movement, pauses, and shifting perspectives.

Working with the horizon and relief becomes key: overhangs, cantilevers, terraces, and level differences anchor the house in the landscape and deprive it of excessive dominance.

The materiality, however, enhances this sense of proportion. Stone, wood, and glass, the depth of the facades, shadows, and textures create visual and tactile depth, slowing perception and shifting the focus from volume to detail and the interaction of light with surfaces.

Thus, scenario-based design becomes the foundation of the project. Each fragment is correlated with movement, pause, or gaze. It is in this connection between architecture and human experience that scale becomes comfortable.

What, for you, determines comfort in large-scale architecture — geometry, materials, or living scenarios?

The project was developed for ATERA as part of the Papushevo Park complex, which combines the comfort of privacy with a strong architectural identity.

  • CONTINENTAL RESIDENCE
  • CONTINENTAL RESIDENCE

План -2 этажа

Basement floor plan
Explication of the plan

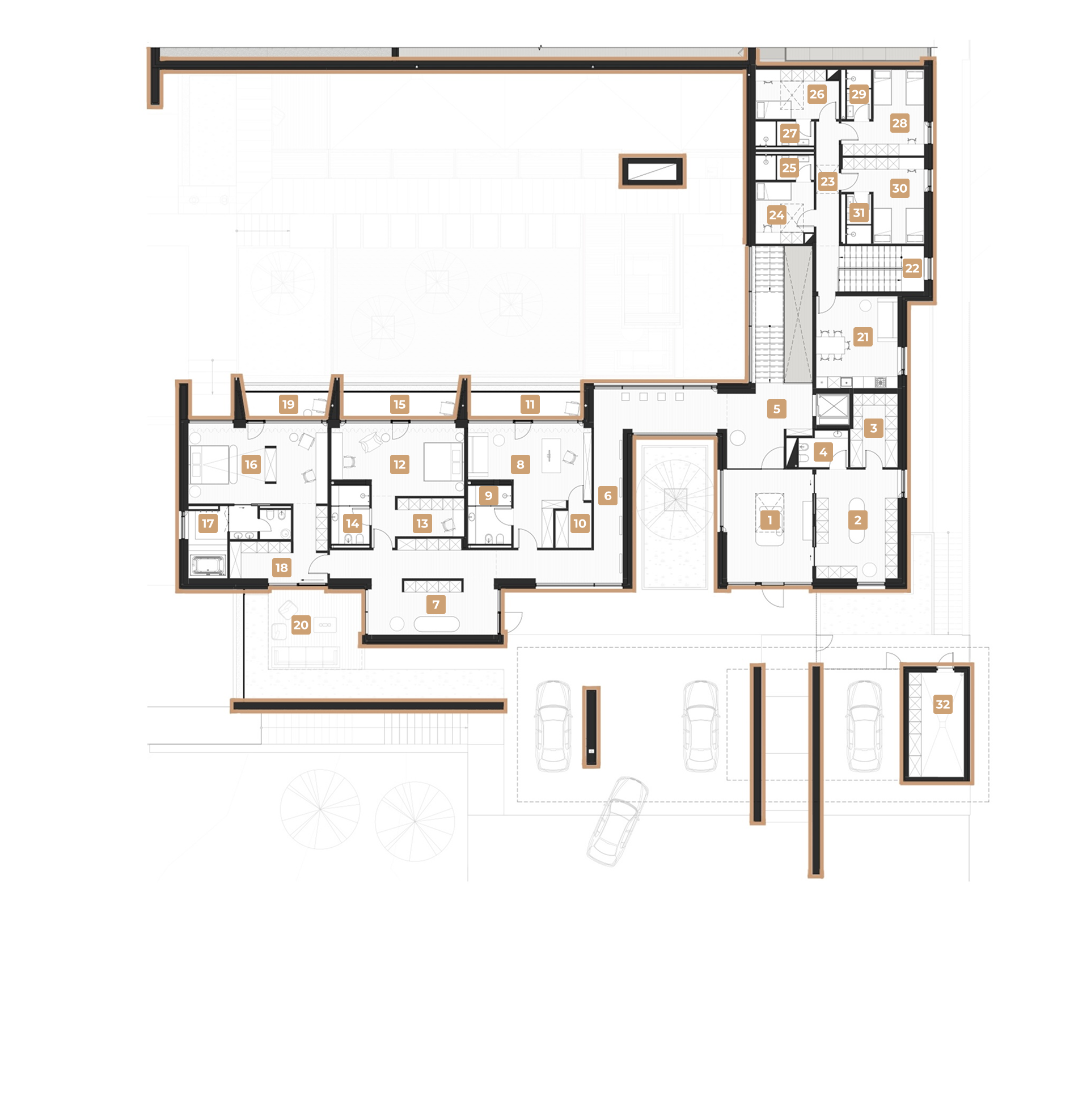
План -1 этажа

1st floor plan
Explication of the plan

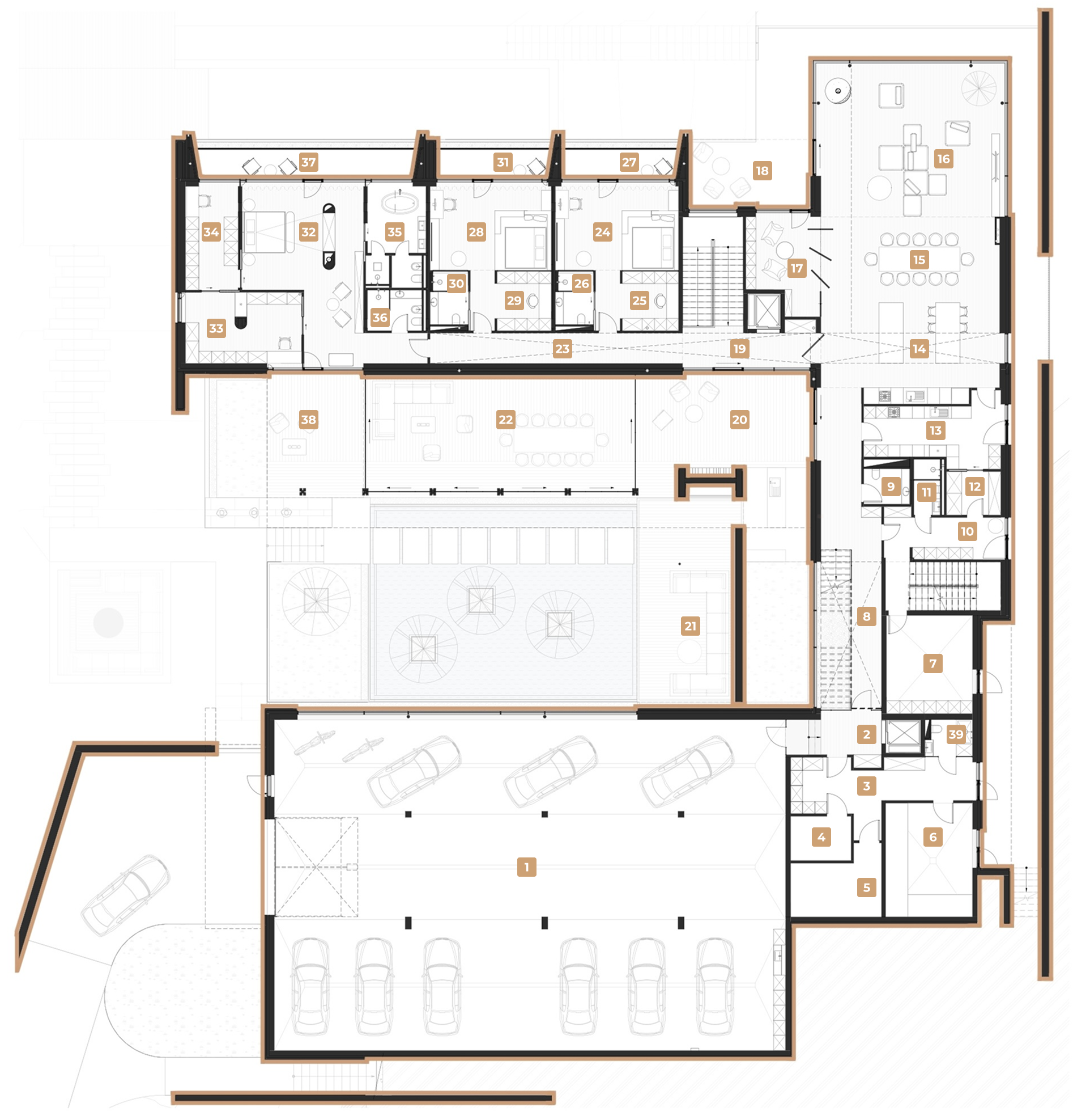
План 1 этажа

2nd floor plan
Explication of the plan


Did you like the project?

Share the link:

Our projects

Look at the works and completed projects of our studio specialists:

contact us

And we will answer any questions you have