Blueberry house

Architectural project

Project description

The house is designed for a young couple to relax and enjoy winter sports. Adjacent to the garage, there's a spacious storage room for snowboards and equipment.

The house's layout consists of several volumes combined into an L-shaped arrangement. This solution opens the interior to the sun and creates a sense of privacy amidst the forest.
The left block houses the guest bedrooms, while the center houses the public spaces: the living room, kitchen, dining room, and spa area, with a staircase that becomes the focal point of the entryway. The second floor houses the private master bedrooms.

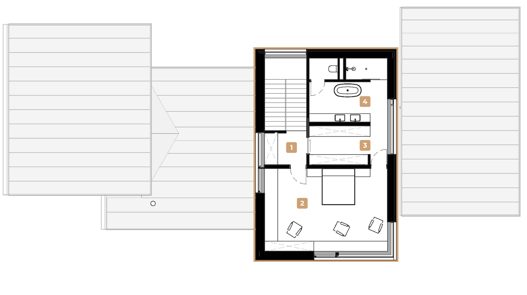
The master bedroom is located on the second floor: the owner desired ample natural light and a private, quiet space. Here, a bedroom with a panoramic south-facing window, a bathroom, and a walk-in closet are located—all spaces are filled with light and views of the forest.

The architectural design complies with local regulations, requiring pitched roofs. The design combines both pitched and flat elements, creating a modern yet harmonious silhouette within the community.

The finishes feature natural materials and a muted color palette: dark gray wood and terrazzo facades reminiscent of polished concrete.

The terrace faces south and connects to the public area. Retractable awnings were chosen instead of a permanent canopy; they provide protection from the sun without blocking the flow of light into the living room, maintaining a sense of open space.

This resulted in a bright, well-designed home that seamlessly integrates into its natural surroundings.

1st floor plan

1st floor plan
Explication of the plan

2nd floor plan

2nd floor plan
Explication of the plan


Did you like the project?

Share the link:

Our projects

Look at the works and completed projects of our studio specialists:

contact us

And we will answer any questions you have