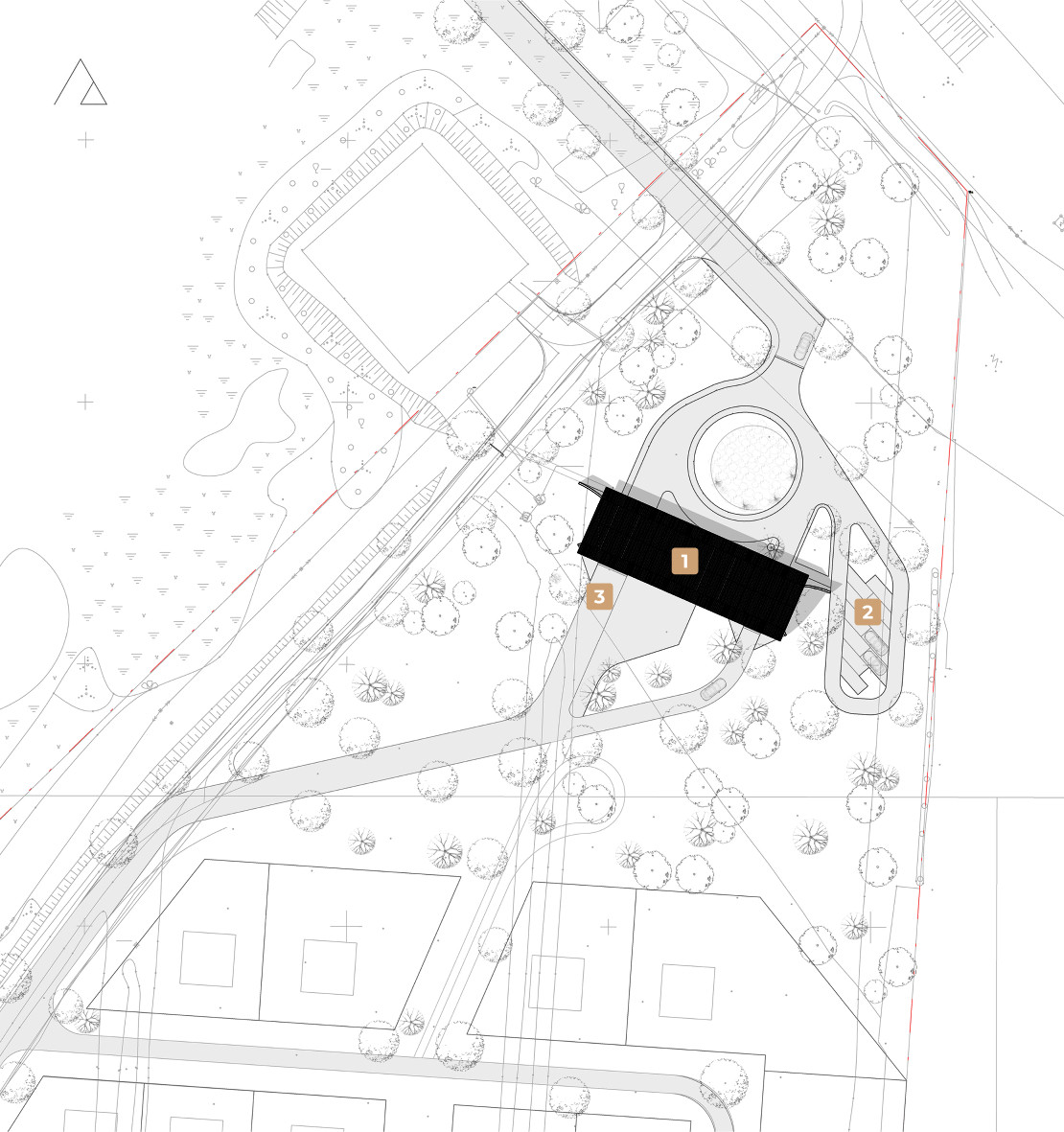
Генплан территории
Проект включает распределительное кольцо с продуманным ландшафтным дизайном и компактную гостевую парковку на 10 машино-мест, гармонично интегрированную сбоку от здания. Это решение обеспечивает удобство для посетителей, сохраняя при этом эстетическую целостность всего ансамбля
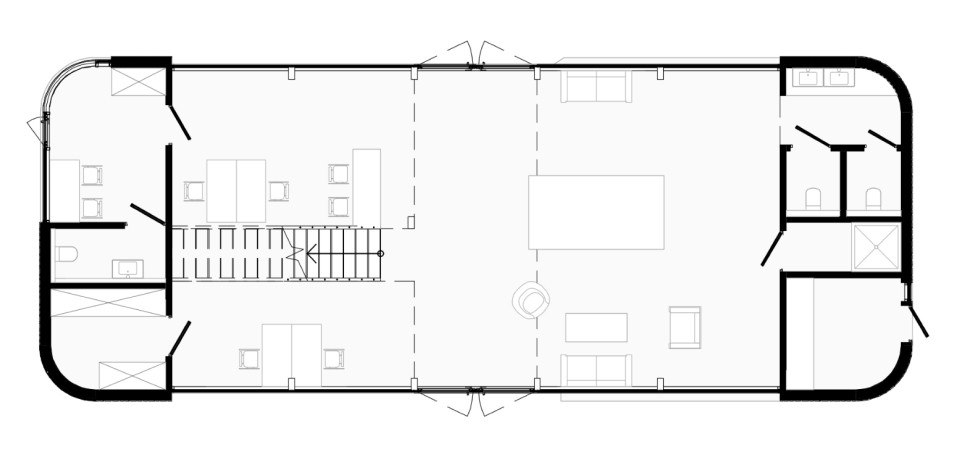
Экспликация
- КПП
- Гостевая парковка на 10 м/м
- Въезд


