Ситуационная схема

Проект, основанный на ясной структуре территории, где каждая зона от въездной группы до рекреационного центра и жилых кварталов формирует логичную, эстетичную и удобную среду. Мы создали пространство, в котором природа, архитектура и функции работают на единый сценарий жизни жителей.
Посёлок расположен в Одинцовском районе Московской области, всего в 18 км от МКАД — на территории, окруженной лесными массивами и природными ландшафтами.
Непосредственная близость к мегаполису формирует высокий потенциал развития этой территории. Уже реализован новый транспортный коридор, обеспечивающий удобную связь с Минским шоссе. В перспективе вдоль участка новой магистрали, проходящей через деревню Зайцево, планируется формирование района многоквартирной застройки.


Таким образом, территория сочетает в себе природную изолированность и стратегическую транспортную доступность — редкий баланс, определяющий её инвестиционную и архитектурную ценность.
Сегодня участок проектирования представляет собой бывшее сельскохозяйственное поле на опушке леса, сохранившее следы прошлого использования: фрагменты агропосадок и элементы системы водопонижения. Близлежащие леса пронизаны тропами и санитарными просеками, формируя живую, естественную среду. Здесь можно встретить диких животных, для которых в лесу размещены специальные кормушки.
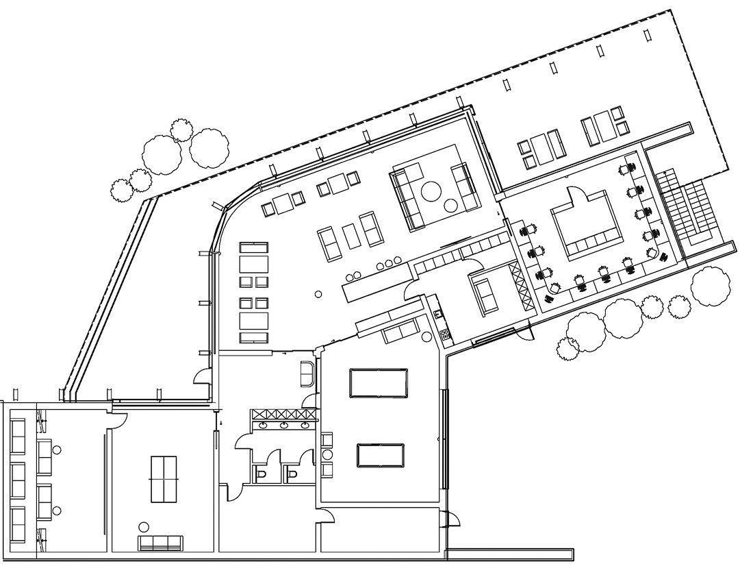
Общественная часть и благоустройство премиального посёлка формируют целостную среду, где архитектура, ландшафт и сценарии жизни работают как единая система. Это не набор функций, а продуманное пространство — сердце посёлка, притягивающее жителей и гостей.
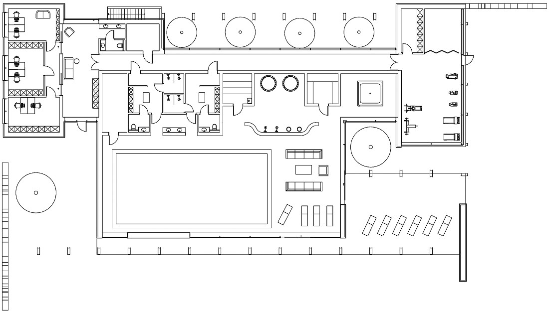
Композиционным ядром является общественная территория, в составе которой спа-центр и рекреационный комплекс — ключевые точки отдыха, восстановления и активного досуга. Эти объекты задают уровень среды и формируют атмосферу уединённой роскоши, в которой комфорт сочетается с эстетикой и природой.
Общественная часть формирует современную и комфортную среду — центр притяжения посёлка. Её ядро — спа- и рекреационный центры: ключевые точки отдыха, восстановления и активного досуга.
Каждый элемент здесь продуман с точки зрения сценариев использования: от приватных уголков для спокойного отдыха до открытых площадок для общения. Пространство работает мягко и естественно, создавая ощущение уюта без избыточной декоративности.








Жилая часть включает типовые дома и участки индивидуальной застройки. Архитектура домов выдержана в едином стиле, что формирует цельный образ посёлка, сохраняя при этом вариативность планировочных решений.
Условные обозначения
|
|
Участки типовой застройки |
|
|
Участки индивидуальной застройки |
Вся территория посёлка продумана до деталей: здесь комфорт ощущается не только в доме, но и за его пределами. Прогулки становятся частью повседневного удовольствия, а жизнь спокойной, вдохновляющей и наполненной.
Возможно вам будут интересны другие направления и проекты нашей студии: