Семейный природный кластер от премиального застройщика MR с оригинальной архитектурой, которая органично сочетает масштабные урбанистические концепции и естественную элегантность. Расположен В 20 минутах от делового центра Москвы.
Это пространство уникальных историй под одной крышей — и под разными тоже. Здесь встречаются семейные традиции, звучит детский смех и сохраняется мудрость старших. «Мыс» задуман как место, где несколько поколений живут рядом: в уютных домах, среди зелёных дворов и в безопасной среде для детей.
Идеальное пространство для жизни, уединения и вдохновения.


«Мыс» — масштабный жилой комплекс премиум-класса, в котором гармонично сочетаются разные форматы жилья. Мы занимались разработкой архитектурных решений для таунхаусов и частных домов.
В «Мысе» каждый найдет дом по своему вкусу:
Это идеальное пространство для тех, кто хочет объединить динамику городской жизни с преимуществами близости к природе. Всего 20 минут — и вы в деловом центре Москвы
|
|
ИЖС |
|
|
Таунхаусы |
|
1
|
Тип |
|
|
Граница разрешенной застройки |
|
|
Проблемные участки |
Проект основан на принципе единства и разнообразия. Это не ряд однотипных домов, а ансамбль, где каждая секция сохраняет индивидуальность и одновременно принадлежит целому. Динамика достигается благодаря смещённым объёмам и сочетанию горизонтальных и скатных кровель, из-за чего облик комплекса меняется в зависимости от ракурса и освещения.
Кирпичная монолитность контрастирует с теплом дерева, а гладкая глазурь скатных элементов добавляет современный акцент. Чередование витражей и камерных проёмов создаёт ритм, управляет светом и делает архитектуру живой и выразительной.

| 1. | Гардероб | 14,31 м² |
| 2. | Котельная, постирочная | 5,59 м² |
| 3. | Санузел | 5,50 м² |
| 4. | Кухня | 11,63 м² |
| 5. | Столовая | 11,98 м² |
| 6. | Гостиная с рабочей зоной | 20,52 м² |
| 7. | Кладовая | 6,01 м² |
| 8. | Кабинет/гостевая | 17,75 м² |
| 9. | Терраса | 6,02 м² |
| Итого | 99,32 м² |

| 20. | Коридор | 13,45 м² |
| 21. | Мастер-гардероб | 11,78 м² |
| 22. | Мастер-санузел | 9,99 м² |
| 23. | Мастер-спальня | 18,32 м² |
| 24. | Спальня | 14,31 м² |
| 25. | Санузел | 6,14 м² |
| 26. | Спальня | 16,28 м² |
| Итого | 90,27 м2 |

| 1. | Прихожая, гардероб | 11,42 м² |
| 2. | Котельная, прачечная | 6,61 м² |
| 3. | Санузел | 5,28 м² |
| 4. | Кухня | 20,53 м² |
| 5. | Гостиная | 43,06 м² |
| 6. | Спальня | 13,97 м² |
| 7. | Терраса | 4,87 м² |
| Итого | 105,74 м² |

| 20. | Коридор | 6,32 м² |
| 21. | Санузел | 4,99 м² |
| 22. | Мастер-санузел | 10,35 м² |
| 23. | Мастер-гардероб | 11,48 м² |
| 24. | Мастер-спальня | 15,75 м² |
| 25. | Спальня | 22,16 м² |
| 26. | Спальня | 21,58 м² |
| Итого | 92,64 м² |

| 1. | Прихожая, гардероб | 11,71 м² |
| 2. | Котельная, прачечная | 7,19 м² |
| 3. | Кладовая | 4,35 м² |
| 4. | Санузел | 5,49 м² |
| 5. | Спальня | 13,97 м² |
| 6. | Кухня | 35,75 м² |
| 7. | Гостиная | 21,53 м² |
| 8. | Столовая | 19,18 м² |
| 9. | Рабочая зона | 9,54 м² |
| 10. | Терраса | 5,85 м² |
| Итого | 134,57 м² |

| 20. | Коридор | 8,39 м² |
| 21. | Спальня | 15,36 м² |
| 22. | Санузел | 5,05 м² |
| 23. | Спальня | 16,91 м² |
| 24. | Мастер-спальня | 18,56 м² |
| 25. | Мастер-гардероб | 11,40 м² |
| 26. | Мастер-санузел | 9,00 м² |
| 27. | Терраса | 5,12 м² |
| Итого | 89,79 м² |
Для всех, кто хочет сбежать от шумного мегаполиса и иметь при этом полноценный городской комфорт, в комплексе есть 13 приватных резиденций, состоящих из двух типов домов.
Характерной чертой домов этого типа является размещение всех помещений на одном этаже, а также расположение заезда в дом с заднего фасада, в то время как передняя часть дома нависает над рельефом. Все жилые помещения мы ориентировали в направлении перспективных видов, которые открываются через сплошной фронт панорамного остекления.


| 1. | Коридор | 11,56 м² |
| 2. | Гардеробная | 9,04 м² |
| 3. | Санузел | 3,76 м² |
| 4. | Кухня гостиная | 56,79 м² |
| 4.1. | Кладовая | 4,77 м² |
| 5. | Кабинет | 18,76 м² |
| 5.1. | Санузел | 6,27 м² |
| 6. | Терраса (0,3) | 12,58 м² |
| 7. | Лестница | 8,15 м² |
| 8. | Кладовая | 9,06 м² |
| 9. | Котельная | 6,95 м² |
| Итого | 147,69 м² |

| 10. | Холл | 7,74 м² |
| 11. | Мастер-спальня + гардеробная | 31,36 м² |
| 11.1. | Санузел | 5,99 м² |
| 12. | Детская спальня | 25,75 м² |
| 12.1. | Балкон (0,3) | 5,83 м² |
| 13. | Детская спальня | 28,15 м² |
| 14. | Санузел | 8,24 м² |
| Итого | 113,06 м² |
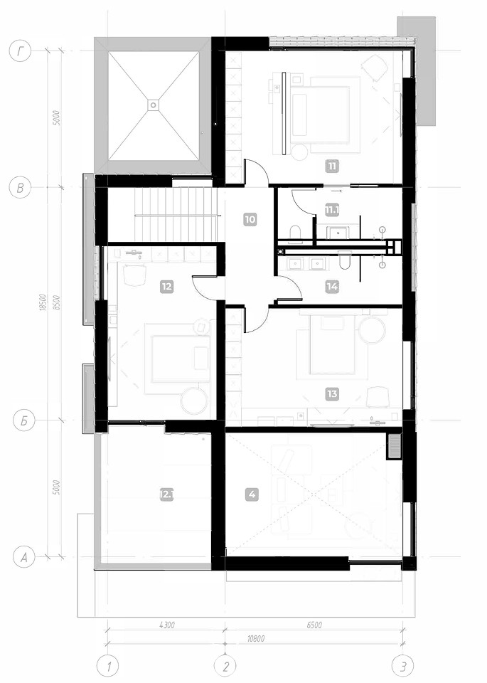
Расширенный формат, где комфорт выходит на новый уровень. На втором этаже — спальни с собственными санузлами и гардеробными зонами. На первом — просторные прихожие, хозяйственные помещения и эффектные двусветные пространства, создающие особую атмосферу.


| 1.1. | Холл | 29,30 м² |
| 1.2. | Гардеробная | 7,34 м² |
| 1.3. | Санузел | 3,53 м² |
| 1.4. | Спальня | 20,95 м² |
| 1.5. | Санузел | 5,73 м² |
| 1.6. | Столовая | 26,83 м² |
| 1.7. | Кухня | 28,19 м² |
| 1.8. | Кладовая | 7,32 м² |
| 1.9. | Гостиная | 42,49 м² |
| 1.10. | Котельная | 8,98 м² |
| 1.11. | Терраса (0,3) | 9,02 м² |
| Итого | 189,68 м² |

| 2.1. | Холл | 11,11 м² |
| 2.2. | Спальня | 19,32 м² |
| 2.3. | Санузел | 4,91 м² |
| 2.4. | Спальня | 24,30 м² |
| 2.5. | Санузел | 5,15 м² |
| 2.7. | Мастер-гардероб | 10,95 м² |
| 2.7. | Прачечная | 11,25 м² |
| 2.8. | Санузел | 11,13 м² |
| 2.9. | Туалет | 1,42 м² |
| 2.10. | Мастер-спальня | 17,04 м² |
| 2.11. | Терраса (коэф. 0,3) | 1,82 м² |
| 2.12. | Терраса (коэф. 0,3) | 1,54 м² |
| 2.13. | Терраса (коэф. 0,3) | 3,90 м² |
| Итого | 123,84 м² |
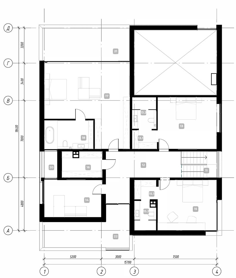
Максимум возможностей для индивидуального сценария жизни. На первом этаже предусмотрены отдельная спальня с санузлом и кабинет, на втором — мастер-спальня с приватным блоком. Пространство, где каждая деталь работает на удобство и статус.


| 1. | Холл | 16,40 м² |
| 1.1. | Коридор | 4,50 м² |
| 1.2. | Коридор | 3,76 м² |
| 1.3. | Лестничный холл | 9,68 м² |
| 1.4. | Гардеробная | 6,65 м² |
| 3. | Санузел | 7,30 м² |
| 5. | Кухня-гостиная | 49,53 м² |
| 6. | Столовая | 49,02 м² |
| 7. | Спальня | 20,40 м² |
| 8. | Санузел | 6,91 м² |
| 9. | Кабинет | 23,72 м² |
| 10. | Котельная | 8,45 м² |
| Итого | 206,32 м² |

| 11. | Лестничный холл | 8,02 м² |
| 12. | Коридор | 21,84 м² |
| 13. | Спальня | 25,15 м² |
| 13.1. | Гардеробная | 3,86 м² |
| 13.2. | Санузел | 6,36 м² |
| 14. | Игровая | 18,21 м² |
| 15. | Спальня | 24,82 м² |
| 15.1. | Гардеробная | 3,80 м² |
| 15.2. | Санузел | 5,13 м² |
| 16. | Прачечная | 8,54 м² |
| 17. | Мастер-спальня + гардеробная | 47,54 м² |
| 18. | Мастер-санузел | 11,75 м² |
| 20. | Балкон | 3,07 м² |
| 21. | Балкон | 24,64 м² |
| 22. | Балкон | 22,51 м² |
| Итого | 235,21 м² |
Возможно вам будут интересны другие направления и проекты нашей студии: