Апісанне праекта

Складаны, матэрыяльны інтэр'ер з аб'ёмнай пластыкай, дзе ключавую ролю адыгрываюць святло і тэкстура. У прасторы вялікага метражу стаяла задача стварыць не проста візуальна ўражлівы інтэр'ер, але гарманічнае спалучэнне утульнасці і раскошы, дзе маштаб не душыць, а напаўняе прастору атмасферай прыватнасці і камфорту.

Фактурныя паверхні, выкарыстоўваныя ў праекце, фармуюць глыбіню і тактыльнасць, дазваляючы кожнай плоскасці ўзаемадзейнічаць з натуральным і штучным святлом. Гэта стварае складаны, шматслаёвы рытм інтэр'еру.

Камернае асвятленне мы выбудавалі сцэнарна: яно не залівае прастору, а раскрывае яе паступова, вылучаючы архітэктурныя лініі, кампазіцыйныя вузлы і ключавыя элементы мэблі і аздабленні. Такі падыход фармуе збалансаваную прасторавую дынаміку, дзе кожны элемент адчуваецца прапарцыйна, а маштаб захоўвае гармонію паміж камернасцю і манументальнасцю.

Прапорцыі, маштаб і матэрыялізацыя элементаў выбудаваны ў адзіную сістэму, дзе кожная дэталь падтрымлівае агульную архітэктурную канцэпцыю, а святло і фактура працуюць як інструмент кампазіцыі. Нават пры выкарыстанні цёмнай, насычанай палітры інтэр'ер застаецца цёплым, ахінальным і візуальна насычаным, ствараючы прастору для розных сцэнараў жыцця.

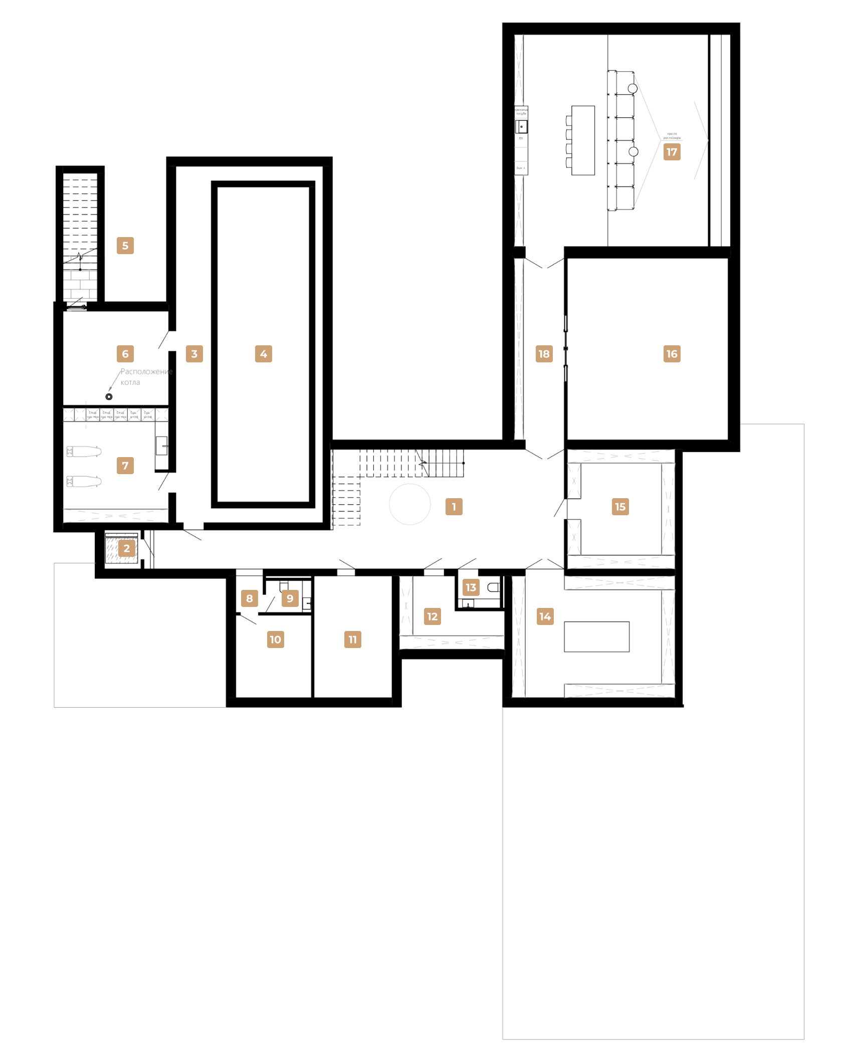
План цокальнага паверха

План цокальнага паверха
Эксплікацыя плана

План 1-га паверха

План 1-га паверха
Эксплікацыя плана

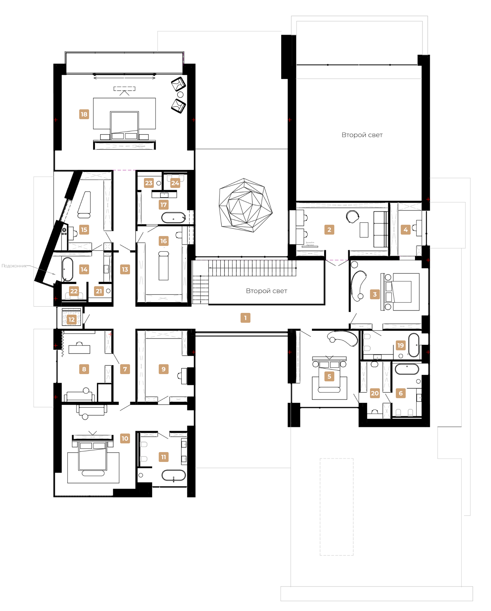
План 2-га паверха

План 2-га паверха
Эксплікацыя плана


Спадабаўся праект?

Падзяліцеся спасылкай:

Нашы праекты

Магчыма вам будуць цікавыя іншыя кірункі і праекты нашай студыі:

Напішыце нам

І мы адкажам на любыя пытанні, якія вас цiкавяць.