Концепция 1
Концепция 2
Концепция 3
Концепция 4
Эхо - проект реновации промышленной территории в современный культурный квартал с развитой инфраструктурой, зонами отдыха и коммерческими помещениями под различные цели и задачи.
Проект основан на идее сочетания истории и современности через функциональное зонирование и бережное отношение к существующей среде. Особое внимание уделено сохранению озеленения и подчёркиванию уникальности места через творческое переосмысление его индустриального прошлого.
Большинство проектов реновации промышленных объектов в городе сосредоточено ближе к центру. Наша площадка расположена немного дальше — и именно это становится её преимуществом. Благодаря локации она может привлечь не только жителей центральных районов, но и периферию города, находясь в непосредственной близости к престижным жилым кварталам.
При этом территория сохраняет отличную транспортную доступность: она расположена на одной из ключевых городских магистралей — проспекте Независимости, что обеспечивает удобное сообщение как для автомобилистов, так и для пассажиров общественного транспорта.
Условные обозначения
|
|
Жилая застройка |
|
|
Промышленные, коммунальные объекты |
|
|
Образовательные объекты |
|
|
Общественные объекты |
|
|
ЖК Vogue |
|
|
Проектируемая территория |
Нашей задачей было сформировать наиболее разнообразное функциональное насыщение пространства, чтобы круг посетителей был максимально обширным, что увеличило бы проходимость и, как следствие, повысило привлекательность пространства для потенциальных арендаторов.
Зонирование учитывает потребности заказчиков, архитектурную концепцию и интересы жителей города, обеспечивая комфорт и разнообразие сценариев использования в разные сезоны. Такой подход позволил создать сбалансированное пространство, в котором промышленное наследие органично сочетается с современным городским ритмом.

В результате предварительного анализа внутреннего и внешнего пространства комплекса мы разработали оптимальную структуру функционального наполнения реновируемых корпусов завода «ЛУЧ» и прилегающих территорий.

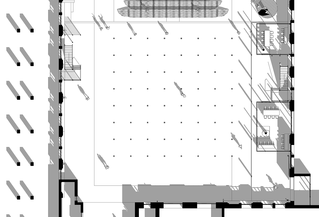
Первый этаж — динамичное пространство, объединяющее рынок, спортивные зоны, производственные и технические помещения, услуги и индивидуальные практики, зал для мероприятий и фуд-корт. Место, которое формирует ритм всего комплекса.
Условные обозначения
|
|
Рынок |
|
|
Общепит / Бар |
|
|
Зал для мероприятий |
|
|
Услуги + ИП |
|
|
Техническая зона |
|
|
Пункты выдачи заказов |
|
|
Производство |
|
|
Спорт |

Второй этаж — центр жизни и общения: здесь спорт и услуги соседствуют с фуд-кортом, коворкингом и залом для событий. Пространство энергии, идей и новых знакомств.
Условные обозначения
|
|
Общепит / Бар |
|
|
Зал для мероприятий |
|
|
Коворкинг |
|
|
Услуги + ИП |
|
|
Спорт |

Третий этаж отведён под просторную спортивную зону с продуманным зонированием для тренировок, восстановления и отдыха.
Условные обозначения
|
|
Спорт |
Мы создали модульное, трансформируемое пространство, которое со временем может менять сценарии использования — от ярмарки до арт-объекта.









Возможно вам будут интересны другие направления и проекты нашей студии: