Описание проекта

Этот дом создан специально для узкого вытянутого участка на самом берегу реки Сысерть. Архитектурная концепция основана на максимальном раскрытии вида: главный объём дома выдвинут к воде, чтобы из всех жилых помещений открывалась лучшая панорама реки.

Эстетика фасадов строится на сочетании ригельного кирпича с выразительной рельефной кладкой и лёгких алюминиевых панелей. Контраст фактур делает объём дома динамичным, подчёркивая его горизонтали и взаимодействие с ландшафтом. Ригельный кирпич добавляет архитектуре тактильности и естественной «земной» прочности, а алюминий привносит современность и визуальную лёгкость.

В благоустройстве поддерживается единый архитектурный язык: периметральный забор выполнен из архитектурного бетона с чистой геометрией, который служит спокойным фоном для материальности фасада и подчеркивает строгость общей композиции. Он же служит естественным ограждением для теннисного корта, который вплотную прилегает к границам участка. Ещё две стороны площадки формируют стены самого дома, создавая приватное и защищённое пространство. Для сохранности панорамного остекления предусмотрены скрывающиеся ставни, которые аккуратно убираются за фасад, не нарушая чистоту линий. Путь к входу в дом проходит под длинным выразительным навесом - он ведёт вдоль теннисного корта и бассейна.

Площадь дома — 550 м². Она включает всё необходимое для комфортной и полноценной жизни: просторную объединённую зону кухни, столовой и гостиной, спортзал, спа-блок с бассейном, две детские комнаты и хозяйскую спальню. Детские вынесены на второй этаж — это позволяет эффективно разделить пространства по уровню шума и обеспечить детям собственный автономный мир. Гостиная расположена на 30 см ниже уровня остального дома — благодаря этому приёму удалось увеличить высоту потолка и придать пространству особую глубину и выразительность.

  • RIVER HOUSE

План 1-го этажа

План 1-го этажа
Экспликация плана

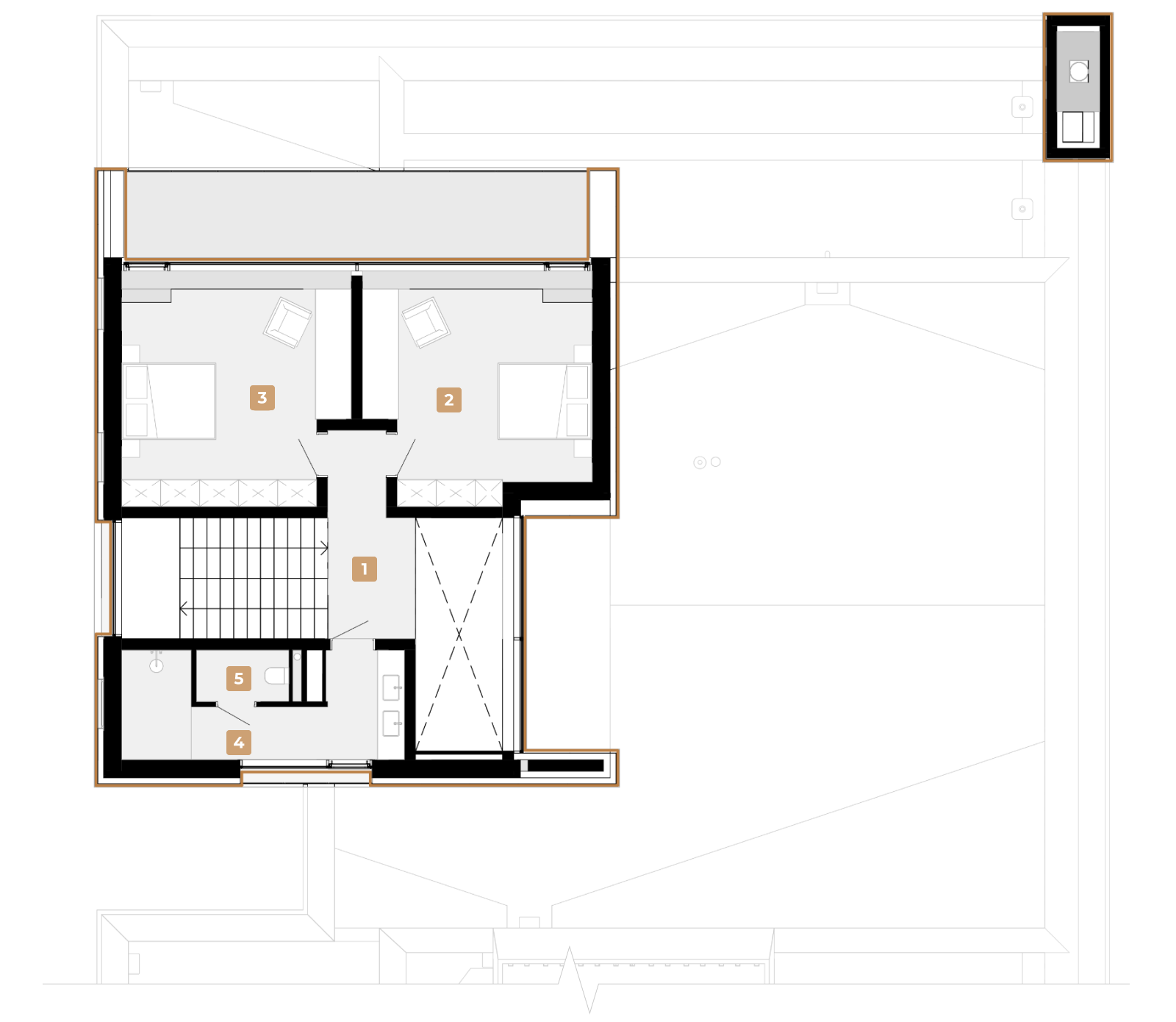
План 2-го этажа

План 2-го этажа
Экспликация плана


Понравился проект?

Поделитесь ссылкой:

Наши проекты

Возможно вам будут интересны другие направления и проекты нашей студии:

Напишите нам

И мы ответим на любые интересующие вас вопросы