Описание проекта

Наш офис в Москве располагается в бизнес-парке «Суперметалл». У этого современного и концептуального пространства длинная интересная история. Там нет традиционного разделения на офисы по классам, зато есть комфортная актуальная инфраструктура для работы, творчества и креатива.

Так как площадь небольшая, мы зонировали пространство с помощью интересной бензиновой перегородки, которая выступает одновременно и системой хранения, и ненавязчивой перегородкой. Нашей главной задачей при проектировании офиса было не спорить с пространством, а гармонично в него вписаться со своей уникальностью. Поэтому интерьер офиса минималистичный и функциональный, а дополняет его мебель нашего бренда BY furniture.

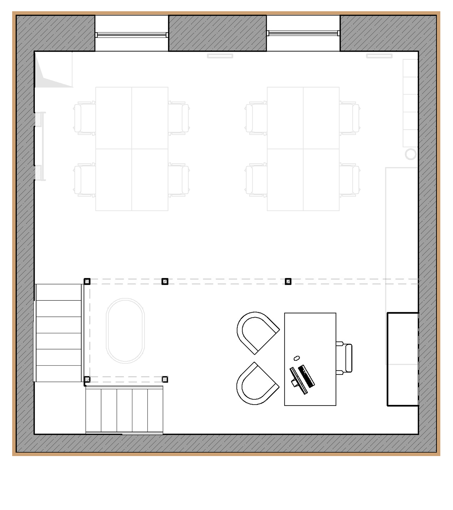
План 1-го этажа

План 1-го этажа

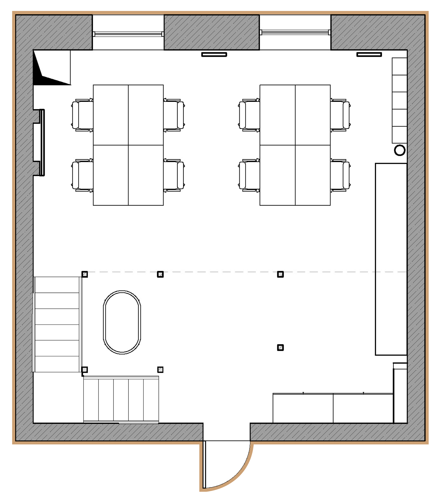
План 2-го этажа

План 2-го этажа

Дополнительное помещение

План 3-го этажа


Понравился проект?

Поделитесь ссылкой:

Наши проекты

Возможно вам будут интересны другие направления и проекты нашей студии:

Напишите нам

И мы ответим на любые интересующие вас вопросы