Описание проекта

Винтовая лестница на террасе, перфорированный бетон и протяжённая линия панорамного остекления — акценты, которые формируют характер резиденции. Мы намеренно играем на контрастах: строгая тектоника бетона сочетается с легкостью стекла, а мощный рельеф участка становится частью архитектурной композиции.

Со стороны подъезда дом выглядит компактным и сдержанным, сохраняя приватность. Но стоит выйти во внутренний двор — и раскрывается его масштаб: четыре уровня, визуально облегчённые прозрачными плоскостями и точными пропорциями.

Гостевая зона становится центром притяжения для больших компаний. Продуманная планировка с визуальным акцентом на гараж превращает любимые автомобили хозяев в часть архитектурного сценария.

Жилая часть разделена на два уровня. Верхний этаж отведён детским спальням, обеспечивая приватность и комфорт для детей. Второй этаж — оазис уединения для родителей. Просторная мастер-спальня соединена с кабинетом, гардеробной, ванной и террасой.

Каждое пространство продумано до деталей, создавая гармоничное сочетание функциональности и эстетики, а эффектные фасады точно добавляют определенного стиля.

  • SHINDISI RESIDENCE

План цокольного этажа

План цокольного этажа
Экспликация плана

План 1-го этажа

План 1-го этажа
Экспликация плана

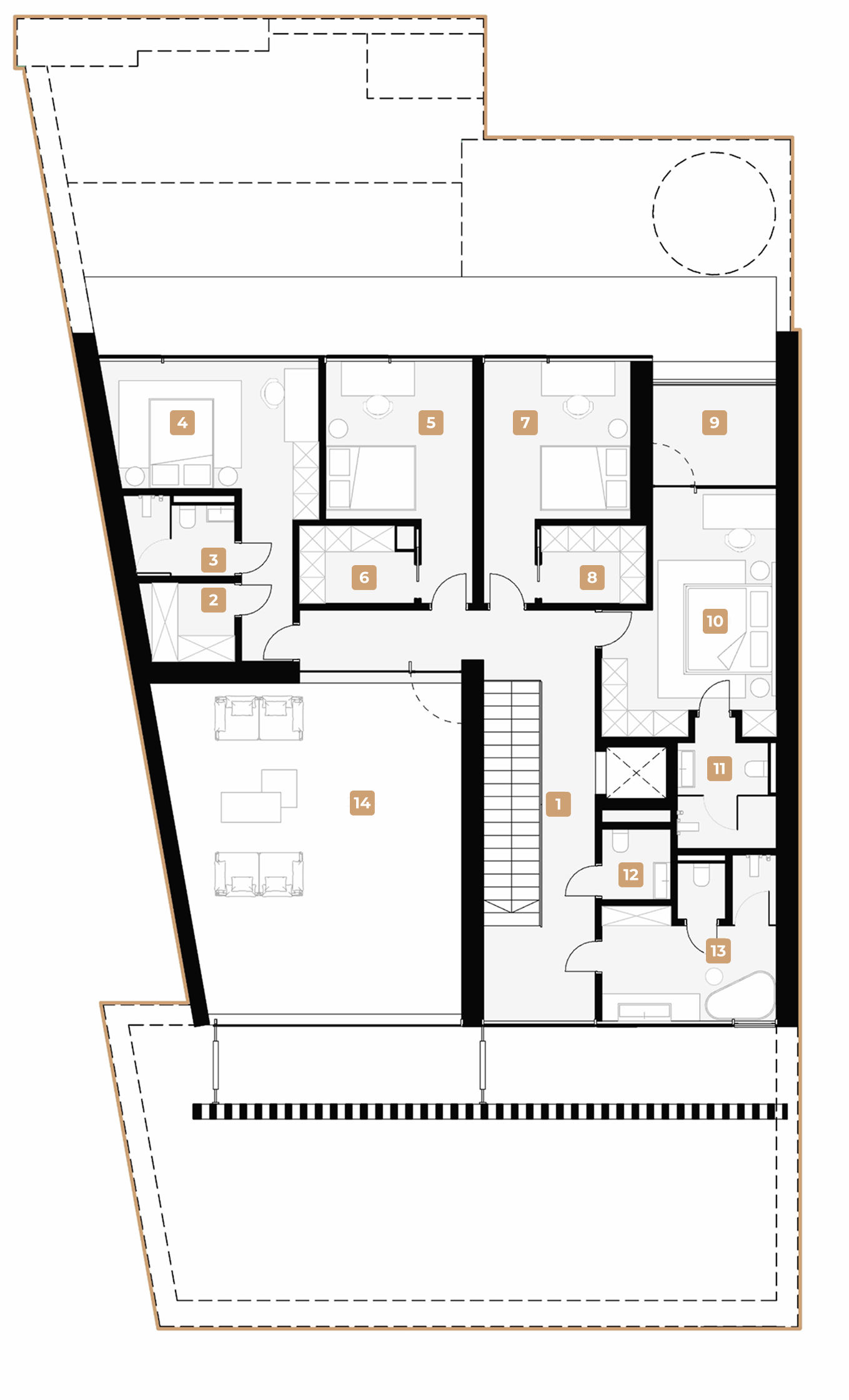
План 2-го этажа

План 2-го этажа
Экспликация плана

План 3-го этажа

План 3-го этажа
Экспликация плана


Понравился проект?

Поделитесь ссылкой:

Наши проекты

Возможно вам будут интересны другие направления и проекты нашей студии:

Напишите нам

И мы ответим на любые интересующие вас вопросы