Архитектура дома строится на контрасте форм и материалов. Консольный объём второго этажа словно зависает в воздухе, формируя под собой уютное укрытие для террасы и задавая дому выразительную пластику.
В основе лежит честный диалог материалов — тёплый клинкерный кирпич первого этажа и холодная фактура рифлёного металла второго. Вместе они создают характер, в котором строгость геометрии сочетается с ощущением тепла и уюта.
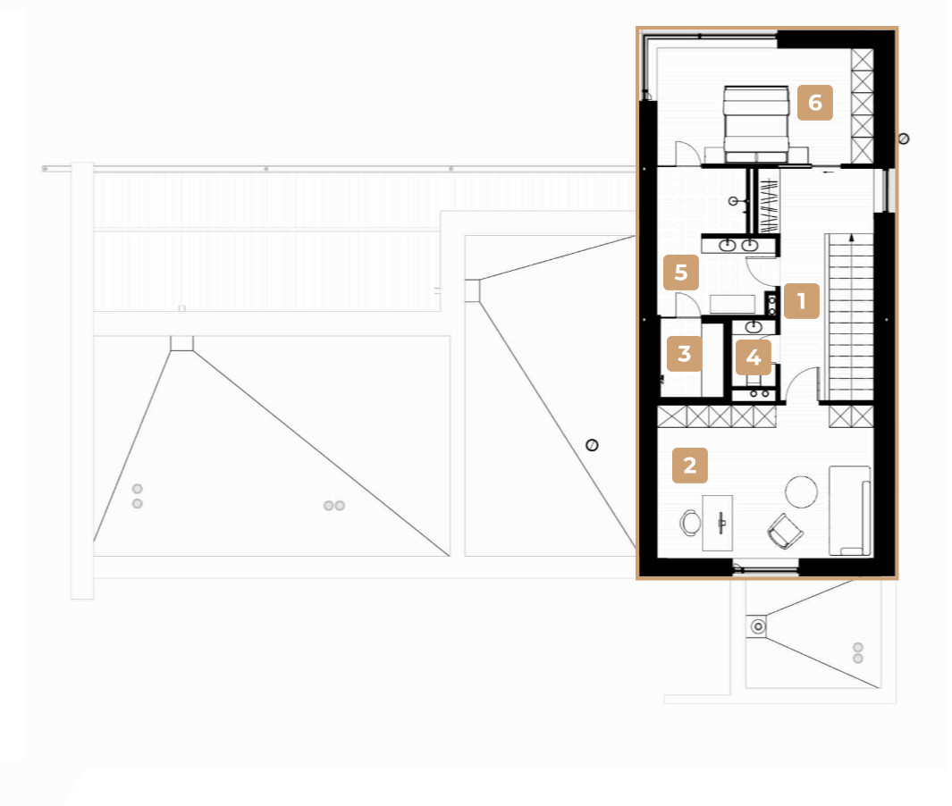
Все общественные пространства сосредоточены на первом этаже: просторная гостиная и кухня-столовая с выходом на террасу. Здесь же расположены несколько спален со своими санузлами и гардеробными. Второй этаж — зона уединения: просмотрный мастер-блок и кабинет, которые позволяют комфортно уединиться и для отдыха, и для работы.
Дом объединяет простоту формы, силу материала и световую открытость. Это пространство, где архитектура работает вместе с природой, создавая атмосферу гармонии и внутреннего комфорта.
 
Возможно вам будут интересны другие направления и проекты нашей студии: